Features
Description
An excellent opportunity to add your own stamp, this extended mid-terrace property is ideally suited to first-time buyers or investors alike. Conveniently positioned close to Colne Town Centre, local shops and with easy access to the M65.
Approached via a flagged front courtyard, the property opens into an entrance hallway. To the front is a lounge which has previously been used as a salon and includes a water supply for a salon chair; this can be easily removed with minimal redecoration required. To the rear, the dining room benefits from useful understairs storage and features a log burner, creating a warm and attractive focal point.
The kitchen has been extended across the full width of the property and is fitted in a U-shaped arrangement, providing ample worktop and storage space, with room for a dining table.
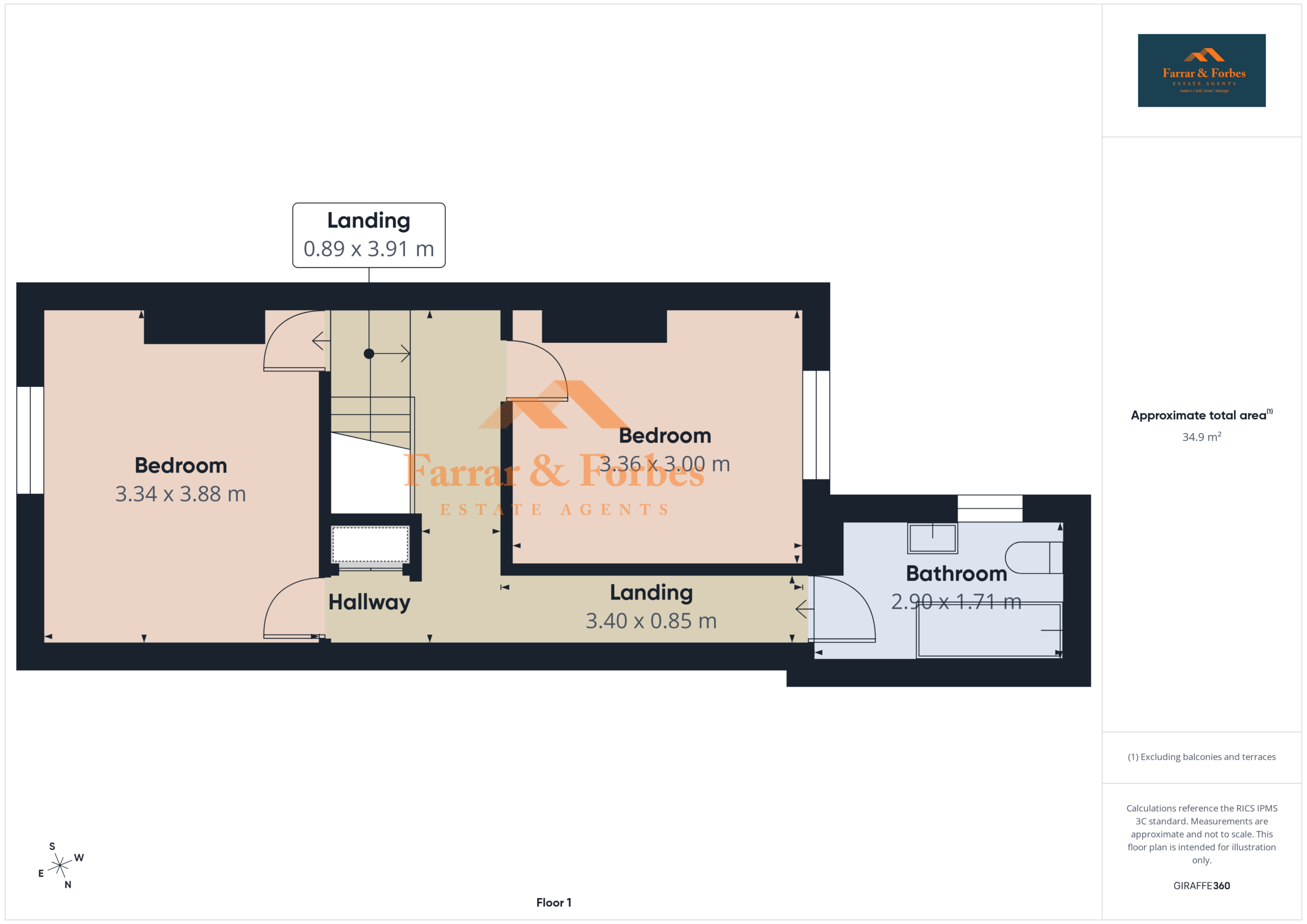
To the first floor are two generously sized double bedrooms. The landing leads to a spacious bathroom comprising a low-level WC, pedestal wash hand basin and a panelled bath with overhead shower.
Brochure
No brochure uploaded
















