An excellent opportunity to add your own stamp,...
22 Walton St, Colne
22 Walton St, Colne
Features
Extended Mid-Terrace
Two Double Bedrooms
Dining Room With Log Burner
Close To Colne Town Centre
Perfect First Home
Two Reception Rooms
Near To Colne Town Centre
Short Distance To M65
Extended Bathroom Suite
No Chain
Description
An excellent opportunity to add your own stamp, this extended mid-terrace property is ideally suited to first-time buyers or investors alike. Conveniently positioned close to Colne Town Centre, local shops and with easy access to the M65.
Approached via a flagged front courtyard, the property opens into an entrance hallway. To the front is a lounge which has previously been used as a salon and includes a water supply for a salon chair; this can be easily removed with minimal redecoration required. To the rear, the dining room benefits from useful understairs storage and features a log burner, creating a warm and attractive focal point.
The kitchen has been extended across the full width of the property and is fitted in a U-shaped arrangement, providing ample worktop and storage space, with room for a dining table.
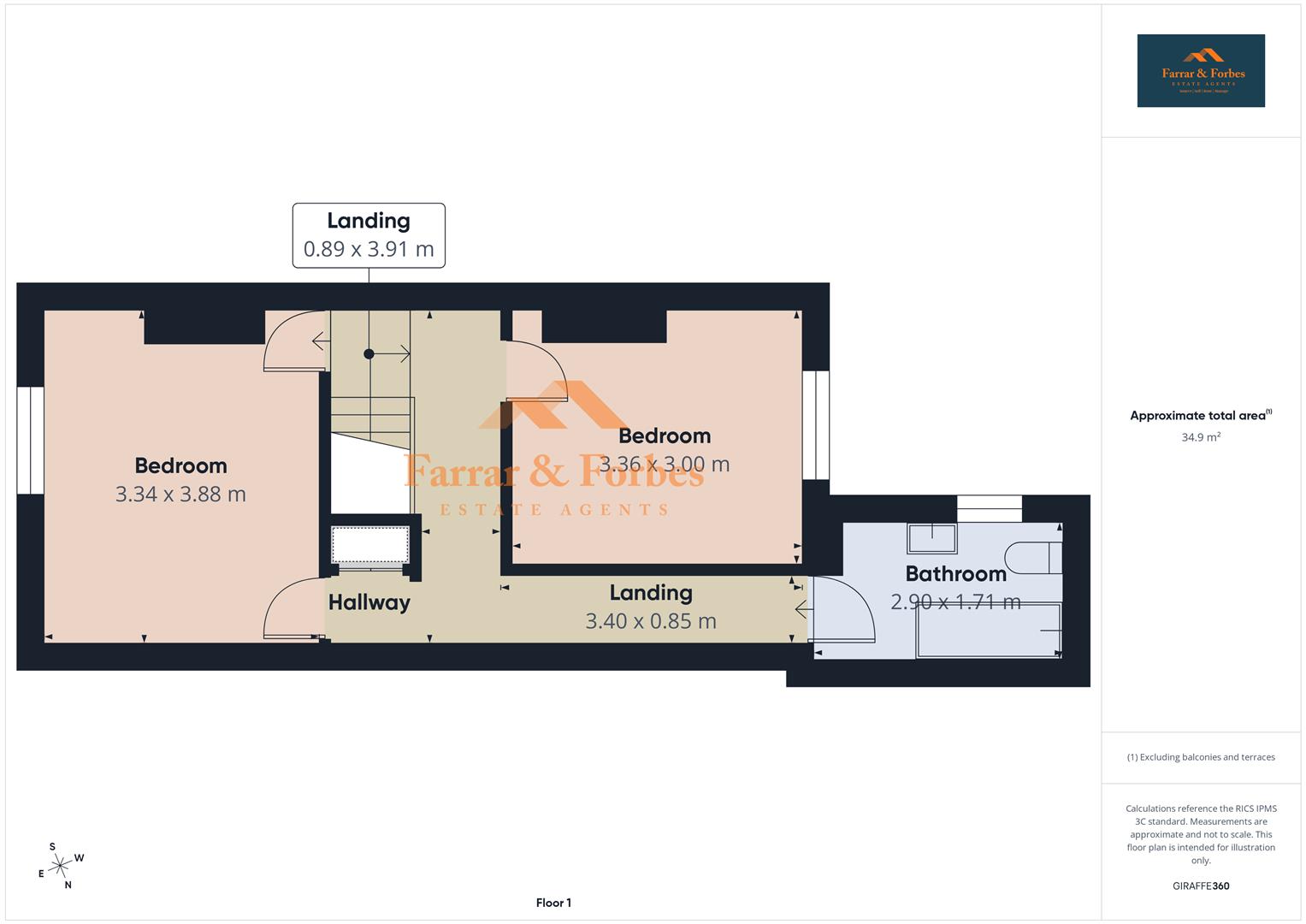
To the first floor are two generously sized double bedrooms. The landing leads to a spacious bathroom comprising a low-level WC, pedestal wash hand basin and a panelled bath with overhead shower.
Used by Google Analytics to determine which links on a page are being clicked
30 seconds
_ga_
ID used to identify users
2 years
_gid
ID used to identify users for 24 hours after last activity
24 hours
_gat
Used to monitor number of Google Analytics server requests when using Google Tag Manager
1 minute
_gac_
Contains information related to marketing campaigns of the user. These are shared with Google AdWords / Google Ads when the Google Ads and Google Analytics accounts are linked together.
90 days
__utma
ID used to identify users and sessions
2 years after last activity
__utmt
Used to monitor number of Google Analytics server requests
10 minutes
__utmb
Used to distinguish new sessions and visits. This cookie is set when the GA.js javascript library is loaded and there is no existing __utmb cookie. The cookie is updated every time data is sent to the Google Analytics server.
30 minutes after last activity
__utmc
Used only with old Urchin versions of Google Analytics and not with GA.js. Was used to distinguish between new sessions and visits at the end of a session.
End of session (browser)
__utmz
Contains information about the traffic source or campaign that directed user to the website. The cookie is set when the GA.js javascript is loaded and updated when data is sent to the Google Anaytics server
6 months after last activity
__utmv
Contains custom information set by the web developer via the _setCustomVar method in Google Analytics. This cookie is updated every time new data is sent to the Google Analytics server.
2 years after last activity
__utmx
Used to determine whether a user is included in an A / B or Multivariate test.