Features
Description
Nestled on the historic Lancaster Street, this beautifully presented home offers the perfect blend of period features and modern potential. Located just moments from motorway links, local shops, quaint bistros, and only a short stroll to the town centre.
Cobbled streets lead to the welcoming front courtyard, where a striking bay window and newly installed windows and front door provide a warm first impression.
Step inside to a bright entrance vestibule and hallway, showcasing high ceilings and intricate original coving. The front lounge is bathed in natural light from the bay window and features a gas fireplace, offering a perfect opportunity to create a stylish focal point.
To the rear, the spacious dining room includes useful understairs storage. The galley-style kitchen extension is well-fitted with matching wall, base, and drawer units, complemented by contrasting work surfaces. With potential to knock through to the dining room, this space could be transformed into a stunning open-plan kitchen/diner with patio doors opening onto the rear yard. The rear yard has been stone paved and has two useful outbuildings.
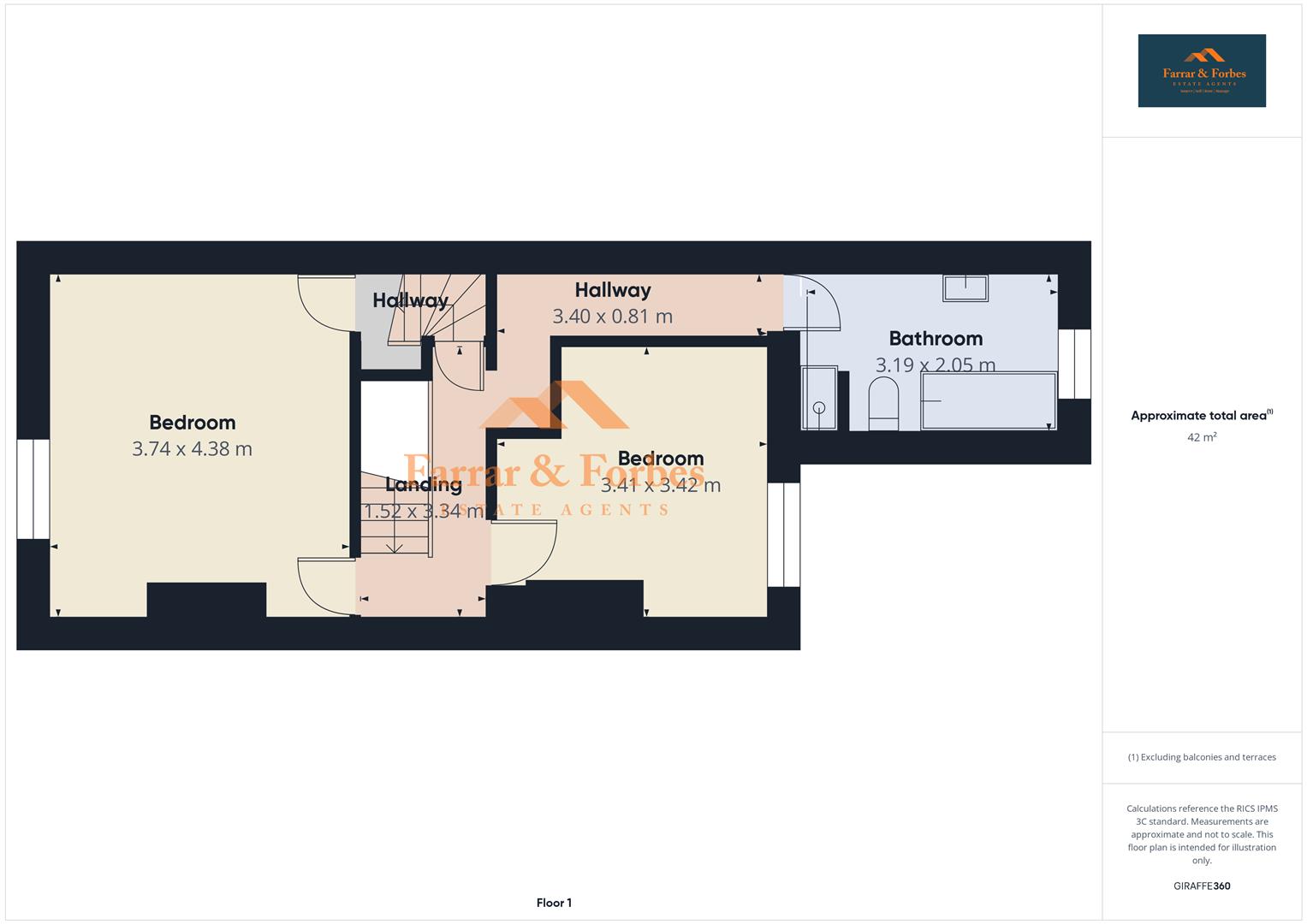
Upstairs, you’ll find two generous double bedrooms. The main bedroom benefits from built-in wardrobe space cleverly positioned under the stairs. The family bathroom features a four-piece suite in classic white, complete with beige tile splashbacks, a low-level WC, pedestal sink, panelled bath, and a quadrant shower with mixer tap.
The top floor is home to a spacious third bedroom, thoughtfully extended into the eaves. With multiple Velux windows, it’s a bright and versatile space.
Brochure
Download Brochure























